Decadent family living in the heart of the McKinnon zone.
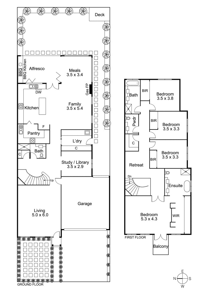
This extraordinarily generous 4-bedroom, 3-bathroom family home dazzling with contemporary flair, really sets itself in a class of its own.
Positioned in one of the McKinnon zones best streets with the reserve around the corner, the college in sight, walking distance to McKinnon station, and just a 5-minute drive to Centre Road burgeoning with shops, cafés and restaurant, there really is no better place to call home.
Seeing is believing as you explore the ground floor with multiple living areas including a study, alfresco dining, and state-of-the-art kitchen with butler’s pantry. This all leads you out into a beautifully manicured private garden.
Ascend the sweeping staircase to be greeted by 4 ample bedrooms including the huge master bedroom with walk in robes, private balcony and en-suite. 2 further bathrooms and retreat area complete this grand building.
** Please note you must register to inspect. Inspections may not proceed if there are no registrations so booking is essential.
You might also be interested in...




